王晓伟, 赫中营, 叶爱君
(同济大学土木工程防灾国家重点实验室,上海 200092)
摘要:进行了平面布置 2 \times 3 钢筋混凝土高桩承台基础模型试件在砂土中的往复荷载拟静力试验。基于推倒分析方法,对试验进行了数值分析,并揭示了试件的地震破坏机理。结果表明:试件各桩在距桩顶 1 倍桩径、土面以下约 3 \sim 8 倍桩径范围内先后形成损伤区域;边桩最先屈服,边桩桩顶截面最先达到极限曲率,对抗震设计起控制作用;桩顶的损伤特征对于桩身自由段长度不敏感,而地面以下桩身的损伤特征对自由段长度敏感。
关键词:高桩承台基础;拟静力试验;地震破坏机理;非线性 Winkler 地基梁模型;推倒分析
中图分类号:U442.5+5 文献标志码:A
Experimental Study on Seismic Failure Mechanism of Elevated Pile-cap Foundation for Bridge Structures
WANG Xiaowei, HE Zhongying, YE Aijun
(State Key Laboratory for Disaster Reduction in Civil Engineering, Tongji University, Shanghai 200092, China)
Abstract: Pseudo-static testing were carried out on 2 \times 3 elevated reinforced concrete pile-cap foundation specimens in sand. Numerical pushover analysis based on beam on nonlinear Winkler foundation (BNWF) model was conducted. Results indicate that side piles yield earlier than middle piles. Each pile forms two plastic hinges at pile-top sections and underground pile sections with the depth of approximately 3 \sim 8 times of section width respectively, specimens suffer failure damage when the top section of the side pile attains to the theoretical ultimate curvature. The pile-top damage area is not sensitive to the above-ground height while the underground pile damage area is sensitive to the above-ground height.
Key words: elevated pile-cap foundation; quasi-static test; seismic failure mechanism; beam on nonlinear Winkler foundation (BNWF) model; pushover analysis
高桩承台基础近些年在跨河、江、海的桥梁工程中被广泛应用,历次地震震害表明桩基础是桥梁结构体系中的地震易损构件1,2,3.我国的桥梁抗震设计规范要求桩基础在地震中保持弹性工作状态4,5,导致实际设计中桩基需大量配筋,结构的安全性和经济性未能取得平衡.但是,美国和日本的相关桥梁抗震设计规范允许桩基础在某些情况下进入屈服状态6,7.因此,是否能够利用桩基础的延性来消耗地震能量成为我国工程设计人员所关心的问题,但前提是必须掌握高桩承台基础的地震破坏机理.
国内外学者已进行了大量的桩基础试验研究. Park 等8, Sheppard9, Banerjee 等10, Budek 等11均采用沿桩身施加确定弯矩的方式来模拟土对桩的作用, 但实际桩 - 土间的相互作用具有不确定性, 即当桩或土体产生塑性变形时会引起桩身弯矩的重分布, 故采用预先给定弯矩分布的方式无法准确模拟土体对桩的真实约束. 周枚12采用弹塑性钢板模拟土体对桩的作用, 但该方法无法模拟由桩 - 土间脱空等情况所引起的土体非线性特征. 相比之下, 采用真实土体的桩基础试验较少. Chai 等13进行了钢筋混凝土桩柱式基础的现场足尺拟静力试验, 结果表明桩基础的水平承载力对砂土相对密度不敏感, 桩身塑性区长度对桩身自由段长度较为敏感, 而对砂土相对密度不敏感. 该试验对象为单柱式基础, 并且现场拟静力试验对加载设备有很高的要求, 而离心机试验对结构缩尺比的要求给钢筋混凝土结构弹塑性性能的准确模拟带来困难, 故室内拟静力试验或振动台试验是有效可行的方法. 在拟静力试验方面, 张晨南14、张永亮等15分别进行了钢筋混凝土低桩承台基础的拟静力试验, 揭示了低桩承台基础的易损部位和破坏过程. 对于高桩承台基础, 张德明16进行了平面布置 2 \times 2 的钢筋混凝土高桩承台基础拟静力试验, 试验表明各桩的破坏以弯曲破坏为主, 裂缝主要出现在承台与桩的连接处以及土面以下桩身区域, 试验并未揭示其地震破坏机理. 在振动台试验方面, 专注于研究钢筋混凝土桩基础结构在非液化场地下抗震行为的试验亦较少, 并且研究对象基本为低桩承台基础. 韦晓17完成了平面布置 2 \times 2 和 2 \times 3 的桩 - 土 - 桥梁结构相互作用振动台试验, 发现低桩承台基础的地震易损部位为桩顶. Chau 等18完成了一个平面布置 2 \times 2 的桩 - 土 - 结构相互作用振动台试验, 同样发现低桩承台基础的桩顶截面在地震下会产生较大的应变. 综上可知, 以研究桩基础抗震行为为主要目的的试验中, 针对高桩承台基础地震破坏机理的试验相对缺乏. 本文以所进行的桥梁高桩承台基础模型试件的拟静力试验为基础, 以数值分析为辅, 研究模型试件的地震破坏机理.
1 拟静力试验
1.1 试件设计、制作及安装
结合工程实际,考虑模型加工的难易程度,设计了两个钢筋混凝土高桩承台基础原型试件,两试件具有不同自由段长度和相同平面布置 (2\times 3) ,具体尺寸参数见表 1,其中入土桩长可保证土面以下桩身出现第二个弯矩反弯点. 承台平面尺寸 1.45\mathrm{m}\times 1.0\mathrm{m} ,高 0.6\mathrm{m} . 纵向主筋采用 HRB335 级螺纹钢筋,箍筋采用 R235 级光圆钢筋,材性试验结果见表 2. 试件采用 C40 商品混凝土进行浇筑,实测混凝土立方体抗压强度为 34.25\mathrm{MPa} ,弹性模量 3.25\times 10^{4} MPa.图 1 为试件 608 单桩配筋情况,图中括号内数值为试件 614 的参数,两试件配筋率相同.
表 1 试件尺寸参数表
Tab. 1 Dimensional properties of specimens (cm)
| 试件编号 | $D$ | $S_d$ | $L_0$ | $L_m$ |
| 608 | 15 | 45 | 80 | 370 |
| 614 | 15 | 45 | 140 | 370 |
注: D 为桩径,S_{\mathrm{d}} 为桩中心距,L_{0} 为自由段长度,L_{\mathrm{m}} 为埋深
表 2 钢筋材料力学性能试验结果
Tab. 2 Mechanical properties of the steel
| 钢筋类别 | $f_y$/MPa | $\varepsilon_y$/10$^{-6}$ | $\varepsilon_{sh}$ | $f_{su}$/MPa | $\varepsilon_{su}$ |
| HRB335 | 335 | 1750 | 0.024 | 490 | 0.15 |
| R235 | 235 | 1175 | 0.023 | 360 | 0.18 |
注: f_{\mathrm{y}} 为屈服强度,\varepsilon_{\mathrm{y}} 为屈服应变,\varepsilon_{\mathrm{sh}} 为强化初始应变,f_{\mathrm{su}} 为极限强度,\varepsilon_{\mathrm{su}} 为极限应变.

a 立面图
Fig.1 Single pile geometry and reinforcement (unit:cm)

bI-I 剖面图
图 1 单桩配筋图(单位:cm)
试件置于盛放中砂土体的钢框架土箱中,钢框架由热轧等边角钢、工字钢和槽钢铆接拼装而成,整体铆接固定在预制的钢筋混凝土底板上,钢架内壁铺装 3\mathrm{cm} 厚木板及薄膜以防止砂土外漏,土箱的平面尺寸保证试件在加载方向及其正交方向的边界分别大于 6D 和 3D ,以减小边界效应的影响19. 试验所用土体为普通河沙,采购后先进行晒干处理. 试件安装时首先在距土箱底部 30\mathrm{cm} 范围内填埋砂土,并充分压实,然后吊装试件并装砂压实,模拟实际工程中摩擦桩的情况,达到预定填埋高度后,静置试件待其完成沉降. 试验开始前在不同位置处取土并测试土性,砂土物理性质见表 3.两试件所用土体均为低含水率的中砂,内摩擦角相同,天然干密度相近,相对密度稍有不同,由于相对密度对结构水平承载力、塑性区长度等的影响不大13,故本文忽略砂土土性的略微差别对试件地震破坏机理的影响.
表 3 砂土物理性质
Tab. 3 Mechanical properties of the sand
| 土体对应编号 | $\rho_{\mathrm{d}}$/(g·cm$^{-3}$) | $\omega$/% | $\theta$/(°) | $\rho_{\mathrm{r}}$ |
| 608 | 1.59 | 0.37 | 31 | 0.65 |
| 614 | 1.62 | 0.27 | 31 | 0.75 |
注: \rho_{\mathrm{d}} 为天然干密度,\omega 为含水率,\theta 为内摩擦角,\rho_{\mathrm{r}} 为相对密度
1.2 试验加载及测量方案
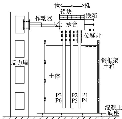
本次试验主要探究承台底弯矩很小的高桩承台基础的地震破坏机理. 桩 - 承台体系可视作质量集中于承台中心的单自由度体系, 故仅对承台施加竖向、水平荷载. 竖向加载采用固定于承台顶部的铁箱与铅块的恒载, 模拟桥墩和上部结构自重, 荷载取群桩基础竖向承载力的 10\% ,按摩擦桩计算,单桩竖向承载力 P_0 由下式求得20:
式中: u 为桩身周长,F_{\mathrm{k}} 为桩侧摩阻力标准值,A_{\mathrm{p}} 为桩端截面积,F_{\mathrm{r}} 为桩端承载力容许值.
对于水平加载,在承台中心施加水平力模拟地震往复荷载。试验采用 MTS-24423X 型电液伺服作动器,以位移控制加载方式进行往复加载,幅值依次为 \pm 5, \pm 10, \pm 15, \pm 20, \pm 30, \ldots, \pm 110, \pm 120, \pm 140, \pm 160, \pm 190, \pm 220, \pm 260, \pm 300\mathrm{mm} ,每级加载循环三次。
承台中心水平力和位移由作动器控制系统采集,并通过拉线式位移计测得的水平位移校核. 图 2 为各桩编号 (\mathrm{P1}\sim\mathrm{P6}) 及应变片图示,钢筋应变由试件制作时粘贴于钢筋上的 BX120-3AA 型应变片采集,每个试件选取 P1,P2,P6 桩的 a,b 号钢筋,沿桩身自上而下共粘贴 84 枚应变片. 同时,在 P1,P2,P6 桩距承台底 5,15,25\mathrm{cm} 处桩身两侧布置位移计,通过位移计的读数差间接获得截面平均曲率. 加载及测量系统见图 3.

图 2 应变片布置平面图

Fig.2 Strain gauge instrumentation
图 3 试验加载及测量系统
Fig.3 Test configuration and instrumentation
1.3 试验现象
表 4 详细描述了两个模型在试验过程中桩基础易观察部分的表观现象以及砂土沉陷变化的情况. 由表可知, 自由段较短的试件的桩顶截面在较小的承台水平位移时就出现裂缝, 说明自由段较短的试件, 其单桩屈服所对应的承台中心水平位移较小.
表 4 高桩承台基础模型试件试验过程表观现象和破坏特征
Tab. 4 Observed damage and failure feature of the specimens during the test
| 加载阶段 | 破坏特征 |
| 初期 $\pm(5\sim 60)\mathrm{mm}$ | 试件608:$\pm 30\mathrm{mm}$加载结束,边桩桩顶垂直于加载方向的截面出现明显水平微裂缝,砂土稍有沉陷试件614:$\pm 40\mathrm{mm}$加载结束,边桩距桩顶2cm处首次出现水平裂缝,砂土整体沉陷约3~5cm |
| 中期 $\pm(60\sim 160)\mathrm{mm}$ | 两试件垂直于加载方向侧面的相似位置陆续出现水平裂缝,并向相邻两侧面延伸,主要集中在距承台底$1D$范围内,边桩保护层混凝土逐渐剥落 |
| 后期 $\pm(160\sim 300)\mathrm{mm}$ | 两试件边桩保护层混凝土不断剥落,箍筋和主筋可见,核心混凝土部分压溃,见图4a;中桩最终的损伤以网状裂缝为主,见图4b;两试件加载结束后中桩砂土沉陷均达15cm,砂土沉陷全过程见图4c |

a 边桩桩顶最终损伤情况

b 中桩桩顶最终损伤情况

c 砂土沉陷随加载幅值变化(试件 614)
图 4 桩顶损伤及砂土沉陷变化情况
Fig.4 Failure feature of pile-top and sand during the test
试验结束后,桩身原土面位置的标线与铁箱无相对位移,故试件无上拔现象。卸砂并取出试件观察可知:两试件均属于典型的弯曲破坏,边桩在损伤最严重处向中桩收拢,桩身相对变形分别达 16\mathrm{cm} 和 10\mathrm{cm} ,见图 5. 以表观的混凝土开裂、剥落为依据,即以单桩桩身混凝土四面开裂或剥落为主要损伤区域,则试件 608 边桩的主要损伤区域集中在土面以下 4.0D\sim8.0D (图 5b 中 B 区和 C 区)的范围,水平裂缝四周贯通,保护层混凝土剥落,箍筋清晰可见;中桩损伤较轻,集中在土面以下 5.0D\sim7.3D (图 5b 中 E 区 ) 范围内. 相比之下,试件 614 边桩主要损伤区域(图 5c 中 B 区和 C 区)位置较浅,范围较小,为土面以下 3.0D\sim6.0D 的范围,且损伤程度相对较轻,箍筋隐约可见;中桩损伤亦较轻,位置较浅,范围较小,集中在土面以下 4.0D\sim5.6D (图 5c 中 E 区)的范围,见表 5.

a 土面以下桩身实际损伤情况

b 试件 608 损伤示意图
图 5 桩身最终损伤情况

c 试件 614 损伤示意图
Fig.5 Final failure feature of specimens
综合而言,往复荷载作用下试件在桩顶以下 1D 范围和土面以下约 3.0D\sim8.0D 范围形成两个主要损伤区域,且桩顶的最终损伤程度高于土面以下桩身,边桩的损伤程度高于中桩。
表 5 试件土面以下主要损伤区域位置及长度
Tab. 5 Location and length of the plastic hinge under ground
| 试件编号 | 桩类别 | 距原土面距离 | 主要损伤区域长度 |
| 608 | 边桩 | $4.0D\sim8.0D$ | $4.0D$ |
| 中桩 | $5.0D\sim7.3D$ | $2.3D$ | |
| 614 | 边桩 | $3.0D\sim6.0D$ | $3.0D$ |
| 中桩 | $4.0D\sim5.6D$ | $1.6D$ |
2 试验数值模型
为探究塑性区域出现的先后顺序和发展情况,引入数值分析方法. 基于 OpenSees 平台建立三维有限元模型,并进行推倒分析21. 通过数值模型的承台中心水平力 - 位移曲线结果与试验结果的比较来验证数值模型的可靠性.相比于试验的循环往复加载方式,数值模型采用推倒分析可更直接地掌握模型试件沿加载方向的三排桩的破坏机理,且推倒分析此循环往复加载方式具有更高的计算效率.
2.1 材料本构
混凝土采用 Kent-Park 本构模型22,见图 6a. 其中 f_{\mathrm{c}} 为非约束混凝土抗压强度,\varepsilon_0 为该峰值强度对应的应变,\varepsilon_{\mathrm{u}} 为非约束混凝土极限压应变,f_{\mathrm{ck}} 为约束混凝土抗压强度,\varepsilon_{0\mathrm{k}} 为所对应的应变,\varepsilon_{\mathrm{uk}} 为约束混凝土极限压应变.钢筋采用 Chang-Mander 本构模型23,见图 6b,参数取值见表 2,弹性模量 E_{\mathrm{s}} = 191\mathrm{GPa} ,初始强化切线模量 E_{\mathrm{sh}} = 5000\mathrm{MPa} .

a 混凝土
图 6 材料本构曲线
Fig.6 Material constitutive curves

b 钢筋
桩 - 土相互作用的模拟采用 p - y 曲线法24. 根据土性参数,依照美国石油协会 (API) 规范25确定 p-y 曲线,其中地基弹性模量参照美国应用技术委员会 (ATC-32) 规范26,并根据试验结果适当修正.
2.2 数值模型建立与验证
试件的自由段长度在试验过程中随砂土沉陷逐渐增加,故以中桩砂土面的最终沉陷深度作为数值模型中自由段长度的增加量,两试件均为 15\mathrm{cm} (见图 4c),约为边桩外侧砂土最终沉陷深度的一半.
图 7a 为所建立桩 - 土有限元模型. 桩身采用弹塑性纤维梁柱单元, 单元长度为 0.1\mathrm{m} ( 为模拟 15cm 砂土沉陷量, 土面附近单元长度 0.05\mathrm{m} ), 基于非线性 Winkler 地基梁模型, 在土面以下桩身各节点建立桩 - 土相互作用 p - y 单元. 承台视为刚体, 质量集中在承台中心, 承台与桩顶采用刚臂的形式连接, 在模型中通过大刚度弹性梁柱单元实现. 由于桩身在试验过程中无明显上拔现象, 故桩尖约束竖向平动自由度. 桩身弹塑性纤维截面如图 7b 所示, 混凝土纤维截面划分为边长 1\mathrm{cm} 的正方形.

a 有限元模型示意
图 7 三维有限元模型
Fig. 7 3-D finite element model of specimens

保护层混凝土
b 桩身纤维截面划分
在数值模型的承台中心施加竖向恒载模拟堆载,并对承台中心施加与试验相同的水平加载幅值,进行推倒分析,将分析结果与试验所得的承台中心水平力 - 位移骨架曲线进行对比. 试验所得骨架曲线按照 FEMA35627的规定,由第 i 级加载幅值的第一圈滞回曲线与第 (i - 1) 级加载幅值的第二圈滞回曲线的交点通过多段线性逼近而形成的光滑曲线. 数值分析与试验结果的对比见图 8,可知数值模型是可靠的,据此可进一步探究其地震破坏机理.
3 破坏机理分析
3.1 损伤状态定义
构件损伤状态的定义是确定结构在地震作用下受损情况的前提,参考桥墩构件损伤状态的定义,对高桩承台基础构件的损伤状态作如下定义:
(1)单桩截面首次屈服,即某一截面内任一钢筋第一次受拉屈服的状态.

a 试件 608

b 试件 614
图 8 数值模型验证
Fig.8 Verification of finite element model
(2)单桩截面等效屈服,即某一截面达到该截面等效屈服曲率的状态。等效屈服曲率基于截面弯矩 - 曲率分析,根据该时刻该桩的动轴力,并按照等能量原则确定,如图 9 所示。由图中阴影部分面积相等而确定的 M_y 即为截面等效屈服弯矩,对应的曲率 \phi_y 即为该截面等效屈服曲率.
(3)单桩截面破坏,即某一截面达到该截面极限曲率的状态. 截面极限曲率通过该截面的弯矩 - 曲率分析,以约束混凝土达到极限压应变确定.
(4)单桩破坏,即单桩的任一截面达到破坏的状态.

图 9 截面等效屈服曲率的定义
Fig. 9 Definition of section equivalent yield curvature
3.2 单桩损伤区域首次屈服顺序定性判断
根据试验中钢筋应变的结果,定性分析试件各桩在桩顶和土面以下桩身两个损伤区域的损伤先后顺序.
图 10 为试件 608 的 P6 边桩作为受压桩且作动器在拉方向时各级加载达到幅值时,a,b 号钢筋的应变沿桩身的分布情况. 图中纵轴正值为自由段桩长,负值为桩身入土深度,横轴正值为拉应变,负值为压应变,受压桩、受拉桩根据边桩所受动轴压力、拉力而定.由于钢筋进入塑性后局部发热等原因可能导致应变片数值失真,故图中仅显示加载幅值不超过 -30\mathrm{mm} 的情况,且仅根据两图中应变片数据的相对关系及变化趋势进行定性分析. 比较图 10\mathrm{a},\mathrm{b} 可知,桩顶截面首次屈服状态的出现先于桩身截面. 此外,从定性上分析,试件 608 的受拉桩、中桩以及试件 614 的各桩亦表现出相同的规律,限于篇幅仅列出受压边桩的结果. 因此,模型试件各桩在桩顶截面先屈服,桩身截面后屈服.

a 边桩桩顶受拉钢筋(拉方向 P6-b 号钢筋)

b 边桩桩身受拉钢筋(拉方向 P6-a 号钢筋)

图 10 试件 608 边桩主筋应变随加载幅值的变化
Fig.10 Variation of steel strain of Specimen 608 with loading amplitude
3.3 各桩破坏顺序定量分析
群桩基础在水平力作用下,各桩受到不同动轴压力、拉力作用,导致各桩的损伤历程必然不同。基于数值模型,通过推倒分析定量确定沿着加载方向的受拉桩、中桩、受压桩的屈服顺序。以试件 608 为例详述如下。
首先,根据纤维截面钢筋的应变达到屈服应变 1750\times 10^{-6} 可得,受拉桩、中桩、受压桩的桩顶首次屈服状态对应的承台水平位移分别为 29,31,34\mathrm{mm} ,这与试验现象中 \pm 30\mathrm{mm} 加载工况结束后桩顶截面观察到明显细微裂缝相呼应;同时,土面以下最大弯矩处首次屈服状态对应的承台水平位移分别为 70,80,95\mathrm{mm} ,进一步由数值模型的截面曲率发展规律可知,各桩桩顶、桩身截面的等效屈服状态的出现顺序与各桩首次屈服出现的顺序相同。因此,综上可知,受拉桩、中桩、受压桩的桩顶截面首先依次屈服,然后土面以下最大弯矩处依次屈服,最终各桩在桩顶和土面以下最大弯矩处附近分别形成两个塑性区域。
虽然在地震中某一瞬时三排桩的动轴力不同,但对于整个地震过程而言,各单桩受到动轴压力、拉力的交替作用,故可认为试验所进行的三排桩试件的边桩受力特性是等价的. 以下对于损伤过程的分析亦不考虑受压桩与受拉桩之分. 对于试件 608,边桩、中桩的桩顶截面首次屈服对应的承台水平位移分别为 29,31\mathrm{mm} ,等效屈服对应的水平位移分别为 32,33\mathrm{mm} ,边桩、中桩的土面以下桩身截面首次屈服对应的承台水平位移分别为 70,80\mathrm{mm} ,等效屈服对应的水平位移分别为 75,85\mathrm{mm}.
对于钢筋混凝土构件破坏状态的确定,通常存在三种判定依据,满足以下任一条件即到达破坏状态:1)主筋断裂,2) 核心混凝土压溃,3) 结构水平承载力下降为峰值的 85\%。对于本文的试件,由试验现象可知主筋未断裂,且水平承载力在下降到峰值的 85\% 前桩顶保护层混凝土已经明显剥落,钢筋清晰可见,核心混凝土部分压碎,而土面以下桩身受土体约束作用,损伤程度相对较低,核心混凝土基本完好,故以桩顶损伤区域(1D)的截面平均曲率达到极限曲率确定单桩的破坏状态,即通过距承台底 15\mathrm{cm} 处边桩两侧位移计读数而间接计算的截面平均曲率达到截面极限曲率来确定。
图 11 为基于试验骨架曲线的两试件地震破坏机理的比较. 由图可知,试件 608,614 桩顶截面屈服对应的水平位移分别近 \pm 30,\pm 40\mathrm{mm} ,这与试验现象相符,试验时两试件分别在 30,40\mathrm{mm} 加载幅值结束后初次观察到桩顶水平裂缝的出现,说明混凝土开裂促使主筋屈服. 比较两试件可知, 桩身自由段长, 整体结构的水平刚度较小, 水平承载力较小, 单桩桩顶、桩身截面屈服对应的承台中心水平位移较大, 单桩破坏对应的水平位移亦较大.

图 11 试件地震破坏机理比较
Fig.11 Comparison on seismic failure mechanism of specimens
图 12 给出两试件破坏顺序的示意,图中箭头指向位置为桩顶、桩身出现屈服的位置,阴影部分代表由试验观察到的主要损伤区域,阿拉伯数字代表各损伤状态出现的顺序。由图可知,水平荷载作用下,试件的边桩桩顶截面最先屈服,进入塑性状态,然后中桩桩顶截面屈服,在各桩顶截面屈服后,边桩土面以下最大弯矩处截面屈服,之后中桩的桩身截面屈服;在各桩桩顶、桩身截面先后进入塑性状态的过程中,沿桩身内力重分布,导致桩顶截面的塑性区域逐渐向下发展,而桩身截面的塑性区域主要逐渐向上扩展,致使各桩先后形成两个塑性区域,随加载幅值增大,桩顶截面损伤加剧,最终边桩桩顶截面核心混凝土压溃,边桩破坏.


a 试件 608
b 试件 614
图 12 试件地震破坏顺序示意图
Fig. 12 Schematic plot of the seismic damage process
进一步比较桩身主要损伤区域的位置可知,桩顶的损伤区域对桩身自由段长度不敏感,两试件均在距承台底 1D 的范围内。而土面以下桩身的主要损伤区域对桩身自由段长度较为敏感,试件 608,614 的边桩分别在土面以下约 7.5D,5.5D 处进入屈服状态,并且桩身主要损伤区域的范围分别发展为 4.0D 和 3.0D。由此可见,桩身自由段短,桩身屈服位置越深,主要损伤区域范围越大。
4 结论
(1)水平往复荷载作用下,高桩承台基础模型试件的桩顶及土面以下桩身的裂缝主要是水平向的,说明两个试件的破坏类型均为弯曲破坏.
(2) 试件的各桩在距桩顶 1D 和土面以下 3D\sim8D 范围内先后形成两个损伤区域.
(3)试件在水平往复荷载作用下,边桩桩顶截面首先屈服,中桩桩顶截面随后屈服,各桩桩顶截面屈服后,土面以下边桩桩身截面屈服,中桩桩身之后屈服;整个高桩承台基础的边桩桩顶截面最先破坏,从而导致边桩破坏。故对于整个高桩承台基础的抗震设计而言,边桩起控制作用。
(4)在桩周土体性质相同的前提下,桩身自由段长度短,试件各损伤区域到达屈服所对应的承台中心水平位移较小,单桩破坏对应的水平位移亦较小.
参考文献:
Department of California Highway Patrol. 1989 Loma Prieta Earthquake summary report [R]. Sacramento: Department of California Highway Patrol, 1989. ↩
Todd D. 1994 Northridge earthquake: performance of structures, lifelines, and fire protection systems [R]. Washington D C: Department of Commerce, Technology Administration, 1994. ↩
Komuten T. A summary report of the survey on the Kobe Earthquake, 1995: the 1995 Hyogo-ken Nanbu Earthquake [R]. Osaka: [s.n.], 1996. ↩
中华人民共和国住房与城乡建设部. CJJ166—2011 城市桥梁抗震设计规范 [S]. 北京:中国建筑工业出版社,2011. Ministry of Housing and Urban-Rural Development of the People's Republic of China. CJJ 166-2011 Guidelines for seismic design of highway bridges [S]. Beijing: China Architecture and Building Press, 2011. ↩
中华人民共和国交通运输部. JTG/TB02-01—2008 公路桥梁抗震设计细则 [S]. 北京:人民交通出版社,2008. Ministry of Transport of the People's Republic of China. JTG/ TB 02-01—2008 Code for seismic design of urban bridges [S]. Beijing: China Communications Press, 2008. ↩
American Association of State Highway and Transportation Officials (AASHTO). AASHTO guide specifications for LRFD seismic bridge design[S]. 2nd ed. Washington DC: AASHTO, 2011. ↩
Japanese Road Association. Specification for highway bridges, part V seismic design [S]. Tokyo: Japan Road Association, 2011. ↩
Park R, Falconer T J. Ductility of prestressed concrete piles subjected to simulated seismic loading[J]. PCI Journal, 1983, 28(5): 113. ↩
Sheppard D A. Seismic design of prestressed concrete piling [J]. PCI Journal, 1983, 28(2): 20. ↩
Banerjee S, Stanton J, Hawkins N. Seismic performance of precast prestressed concrete piles[J]. Journal of Structural Engineering, 1987, 113(2): 381. ↩
Budek A M, Benzoni G, Priestley M J N. Experimental investigation of ductility of in-ground hinges in solid and hollow prestressed piles [R]. San Diego: University of California, 1997. ↩
周枚. 高桩承台桥梁抗震性能试验和理论研究 [D]. 上海:同济大学,2008. ZHOU Mi. Experimental and theoretical studies on seismic performance of elevated pile caps [D]. Shanghai: Tongji University, 2008. ↩
Chai Y H, Hutchinson T C. Flexural strength and ductility of extended pile-shafts. II: experimental study [J]. Journal of Structural Engineering, 2002, 128(5): 595. ↩ ↩
张晨南. 推倒分析方法在高架桥梁系统抗震分析中的应用 [D]. 上海:同济大学,2003. ZHANG Chennan. Application of pushover method on seismic analysis of viaducts [D]. Shanghai: Tongji University, 2003. ↩
张永亮,陈兴冲,丁明波. 黄土地基 - 群桩基础 - 桥墩滞回特性模型试验研究 [J]. 兰州交通大学学报:自然科学版,2007,26(1):93. ZHANG Yongliang, CHEN Xingchong, DING Mingbo. Study on model test of loess subgrade-pile group-pier for hysteretic property [J]. Journal of Lanzhou Jiaotong University, 2007, 26 (1): 93. ↩
张德明. 桥梁高桩承台基础抗震性能拟静力试验研究 [D]. 上海:同济大学,2011. ZHANG Deming. Experimental study on seismic performance of elevated pile-cap foundation of bridges [D]. Shanghai: Tongji University, 2011. ↩
韦晓. 桩 - 土 - 桥梁结构相互作用振动台试验与理论分析 [D]. 上海:同济大学,1999. WEI Xiao. Shake table tests of soil-pile-structure interaction and its theoretical analysis [D]. Shanghai: Tongji University, 1999. ↩
Chau K T, Shen C Y, Guo X. Nonlinear seismic soil-pile-structure interactions: Shaking table tests and FEM analyses [J]. Soil Dynamics and Earthquake Engineering, 2009, 29: 300. ↩
Park R J, Priestley M J N, Berrill J B. Seismic performance of steel encased concrete piles [R]. Christchurch: University of Canterbury, 1987. ↩
中华人民共和国交通部. JTG D63—2007 公路桥涵地基与基础设计规范 [S]. 北京:人民交通出版社,2007. Ministry of Transport of the People's Republic of China. JTG D63—2007 Code for design of ground base and foundation of highway bridges and culverts [S]. Beijing: China Communications Press, 2007. ↩
Freeman SA, Nocoletti JP, Tyrell J V. Evaluations of existing buildings for seismic risk-a case study of Puget Sound Naval Shipyard, Bremerton, Washington [C]//Proceedings of the U S National Conference on Earthquake Engineering. Berkeley, Earthquake Engineering Institute, 1975: 113-122. ↩
Kent D C, Park R. Flexural members with confined concrete. Journal of the Structural [J]. Division, 1971, 97(7): 1969. ↩
Chang G A, Mander J B. Seismic energy based fatigue damage analysis of bridge columns: part I, evaluation of seismic capacity [R]. New York: National Center for Earthquake Engineering Research, 1994. ↩
McClelland B, Focht J A J. Soil modulus for laterally loaded piles [J]. Transactions of ASCE, 1958, 123: 1049. ↩
American Petroleum Institute. Recommended practice for planning, designing, and constructing fixed offshore platforms—working stress design [S]. Washington D C: American Petroleum Institute, 2005. ↩
Applied Technology Council ATC-32. Improved seismic design criteria for California bridges: provisional recommendations [S]. Redwood City: Applied Technology Council, 1996. ↩
Federal Emergency Management Agency. FEMA 356 Prestandard and commentary for the seismic rehabilitation of buildings [S]. Washington D C: Federal Emergency Management Agency, 2000. ↩