翁健健 * 叶爱君 商宇
(同济大学土木工程防灾国家重点实验室,上海 200092)
摘要
针对墙式墩对桥梁横向抗震性能不利的问题,提出了一种新型分离式桥墩,并以一座规则的连续梁桥为例,采用延性抗震设计方法,分别对采用墙式墩和分离式墩的桥梁,进行地震反应分析和抗震验算,最后对抗震性能进行了详细的对比分析。结果表明,墙式墩抗弯强度较大,在地震作用下不易发生屈服,从而对能力保护构件提出很大的抗震需求,而采用分离式墩可以很大程度地降低对能力保护构件的抗震需求,有利于改善桥梁整体抗震性能。
关键词
桥梁,墙式墩,分离式墩,抗震性能
A New Separated Pier and its Effect on Bridge Seismic Performances
WENG Jianjian* YE Aijun SHANG Yu
(State Key Laboratory for Disaster Reduction of Civil Engineering, Tongji University, Shanghai 200092, China)
Abstract
To improve the seismic performance of the bridge with wall-type piers in the transverse direction, a new separate pier was proposed. Taking a normal continuous beam bridge as a study case, seismic ductility design of the bridge with wall-type piers and separated piers were carried out, respectively. Both seismic response analysis and seismic check were performed. Then, the seismic performance were compared in detail. Results show that the wall-type piers, due to its large flexural strength, is unlikely to yield under design earthquakes in transverse direction. Therefore, it leads to large seismic demands for capacity-protected elements. The separated piers can reduce the seismic demands for capacity-protected elements significantly, in this way enhancing the bridge seismic performances.
Keywords
bridge, wall-type pier, separated pier, seismic performance
1 引言
近年来,随着经济的快速发展和对交通需求的逐渐扩张,我国桥梁建设事业蒸蒸日上,特别是为了缓解城市交通压力,城市高架桥建设也迎来了一个新高潮。桥墩作为桥梁重要传力构件,影响着桥梁的整体设计,在桥梁设计中占据着重要地位。不同的场地、不同的设计要求都影响着桥墩类型的选择。通常,桥墩的选择主要从桥梁美学、受力特性以及经济适用性等几个方面进行考虑。国内外很多学者从这几方面不同角度探讨了桥墩造型选择的问题,取得了一定的成果,但依然有很多问题存在。
目前我国城市桥梁主要采用两种桥墩:单柱墩和双柱墩,其中单柱墩居多2。而在单柱墩中,由于特殊的场地和线型控制等因素的影响,国内很多城市桥梁采用横向尺寸与纵向尺寸比值很大的一类桥墩,如图 1 所示,这类桥墩通常称为墙式墩。

图 1 某城市高架桥桥墩
墙式墩具有很强的横向抗弯能力,在地震作用下不易屈服。根据能力保护设计的思想3,墙式墩会对基础等能力保护构件提出过高的需求。我国的桥梁基础中桩基础很多,因其损坏具有不易检查和不易修复等特性,在桥梁整体设计中占据重要地位。此外,桩基础通常是一个浩大的工程,在桥梁整体造价中占据比例较大4。因此,如果能更合理地设计桥墩,降低对桩基础等能力保护构件5的需求,将会降低桥梁的施工难度和工程造价。
为了改善墙式墩桥梁横向抗震不利的问题,本文提出一种新型分离式桥墩,并以一座实际连续梁桥为例,分别采用两种不同的桥墩形式,根据延性抗震的设计思想6,进行横桥向的延性抗震设计,着重对桥墩、桩基础和支座的抗震需求和能力进行详细比较,定量分析两类桥墩对桥梁横桥向抗震性能影响的差异,以供设计人员参考分析。
2 新型分离式桥墩的设计
2.1 构造设计
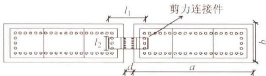
分离式桥墩是在保持相同配筋率和支座设置的情况下,将墙式墩从中间分开,中间留有一定宽度的缝隙,两墩柱顶采用剪力连接件连接为整体的一种新型桥墩,如图 2 所示。其中,A, B 分别为墙式墩横、纵向宽度,a, b 为分离式桥墩横、纵向宽度,d 为墩柱之间缝隙的宽度,l_1, l_2 分别为剪力连接件横、纵向尺寸。

(a) 墙式墩

(b) 新型分离式桥墩
图 2 两类桥墩截面
两墩柱顶部采用剪力连接件7连接,具体构造如图 3 所示。图中,1 为螺栓,2 为钢板,3 为焊接钢条,4 为墩柱之间的缝隙,5 为钢板垫石,6 为桥墩。

图 3 剪力连接件示意图
2.2 分离式墩墩柱间连接构件的设计
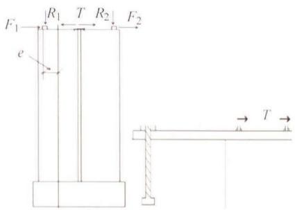
从前文可知,分离式墩是将墙式墩从中间分开来,不改变支座的设置位置,于是,原有对称设置的支座对于每一墩柱来说变成了偏心布置,对桥墩受力不利。为了平衡每一墩柱的偏心距,在两墩柱中间设置剪力连接件。剪力连接件由两块型钢搭接而成,中间用钢条焊接。地震发生时,螺栓不发生破坏,钢条焊缝发生剪切破坏。本小节针对剪力键连接构件,特别是钢条焊缝进行定性分析和设计。
图 4 为新型桥墩墩顶受力示意图,其中,H 为桥墩高度,e 为支座中心线偏离墩柱中心线的距离,R_1 和 R_2 为上部结构传递下来的支承反力,F_1 和 F_2 为横向水平地震力,T 为焊缝所受剪力。为了保证弯矩平衡,剪力钉作用力 T 需满足:
从而得到焊缝受力:

图 4 桥墩墩顶和焊缝受力示意图
右钢条采用某型号钢,长度为 l_2,高度为 f,厚度为 t,焊缝长度 l_2,焊脚尺寸为 h_1,焊缝抗拉强度设计值为 f_t^w,焊缝数量为 n。则焊缝应力应满足:
从而得到钢条截面面积:
此外,地震作用时,焊缝发生破坏,钢条截面面积需满足以下条件:
根据上述公式,便可确定焊接钢条的总截面面积。参考《钢结构设计规范》(GB50017—2003)8,满足构造要求,可确定钢条和焊缝的具体布置形式。
从上可知,分离式桥墩是在墙式墩的基础上加以改造得来,二者在力学特性方面具有较大的区别。一方面,与墙式墩相比,分离式墩截面面积基本保持不变,纵桥向截面抗弯惯性矩也相差无几。另一方面,分离式桥墩的横向刚度大幅度减小,仅为墙式墩的 1/4(焊缝在地震作用下发生破坏,对桥墩刚度的影响忽略不计)。
3 结构概况和地震动输入
3.1 结构概况
某城市高架连续梁桥,一联( 1130\text{m}),属于规范规定的规则桥。纵桥向,由于本文主要分析两类桥墩对于桥梁横向抗震性能的影响,纵桥向支座的设置方式不影响最终的结果,故在建立模型的时候纵桥向支座均设置为固定支座;横桥向,各墩顶一侧设置横向固定盆式支座,另一侧设置为横向活动盆式支座。每跨上部结构质量为 957.567\text{t}(包括二期恒载)。
图 5 为桥梁横断面和基础布置图。支座和垫石高度为 0.3\text{m},墩柱高度为 15\text{m},墙式墩截面尺寸为 7.5\text{m}(横桥向), 1.4\text{m}(纵桥向),分离式墩截面尺寸为 3.7\text{m}(横桥向), 1.4\text{m}(纵桥向),两墩柱之间的缝隙为 0.1\text{m}。桩基采用 4 根 \phi 1200\text{mm} 钻孔灌注桩(摩擦桩),桩长为 71.8\text{m}。主梁、桥墩和基础分别采用 \text{C}50、\text{C}40、\text{C}30 混凝土。墙式墩质量为 409.5\text{t},新型桥墩单墩质量为 202.02\text{t},承台质量为 287.3\text{t}。剪力连接构件采用 \text{Q}345\text{B} 钢材,钢板厚度为 0.015\text{m},焊接钢条高度为 0.1\text{m} 厚度为 0.008\text{m},焊脚宽度为 0.01\text{m}。考虑到新型桥墩中的连接钢板刚度对于桥墩整体刚度的影响很小,可以忽略不计,在建立新型桥墩模型时不考虑钢块的作用。

(a) 桥梁横断面图

(b) 墙式墩基础布置图

(c) 分离式墩基础布置图
图 5 桥梁横断面和基础布置图(单位:\text{mm})
3.2 计算模型及地震动输入
由于该桥属于规范规定的规则梁桥,运用 SAP2000 建立模型时建立单墩模型,如图 6 所示,并采用反应谱方法进行计算。墩顶为一跨上部结构的质量。墩身每 3\text{m} 划分一节点,基础采用六弹簧模拟,加在承台底部,弹簧刚度:纵桥向 1.27\times 10^5 \text{kN/m},横桥向 7.21\times 10^6 \text{kN/m},竖向 7.21\times 10^6 \text{kN/m},绕纵向 7.84\times 10^7 \text{kN}\cdot\text{m/Rad},绕横桥向 3.62\times 10^7 \text{kN}\cdot\text{m/Rad},绕纵桥向 3.79\times 10^6 \text{kN}\cdot\text{m/Rad}。

(a) 墙式墩模型

(b) 分离式桥墩模型
图 6 单墩模型
由于桥梁基础相对于桥墩刚度小,对于桥梁结构的动力特性影响较大,经计算得到桥梁结构的横桥向基本周期:墙式墩为 0.85\text{s},新型桥墩为 0.96\text{s}。
通过《中国地震动参数区划图》查得所在场地的设计基本地震加速度为 0.1g,地震分区第一区,场地类型四类场地,反应谱特征周期为 0.65\text{s}。按照《城市桥梁抗震设计规范》(CJJ166—2011)9,桥梁类别为乙类,E1 地震下地震调整系数 C_i 为 0.61,E2 地震下地震调整系数 C_i 为 2.2,图 7 为计算时使用的反应谱。

图 7 水平设计加速度反应谱
4 桥墩抗震性能比较
在延性抗震设计中,常规桥梁的墩柱往往按延性构件设计,需要进行 E1 地震下的抗弯强度验算和 E2 地震下的变形能力验算和抗剪验算。
4.1 E1 地震下墩柱抗弯强度验算比较
E1 地震作用下,分离式墩的剪力连接件中焊缝会发生破坏,上部结构的横向地震惯性力主要由顶部设置横向固定支座的墩柱承受,另一滑动墩柱受力很小。表 1 列出了在 E1 地震下,两类桥墩抗弯强度验算结果,并进行了比较,其中分离式墩的弯矩需求为固定墩柱的值,后文中都是如此。从表中结果可以看出,尽管分离式桥墩是在保证与墙式墩相同配筋率的情况下得来的,但不同的钢筋布置形式对于墩柱的抗弯能力还是有一定的影响。另外,表中结果显示,两类桥墩均保持在弹性范围内。但是,墙式墩的能力需求远大于分离式墩的能力需求比,为分离式墩的 2.66 倍。墙式墩的抗弯能力盈余过多,设计过于保守,在较大地震作用中都不易发生屈服。而分离式墩大幅度地降低了能力需求比,设计较为合理。
表 1 E1 地震下墩柱抗弯强度验算
| 计算项目 | 横桥向 |
|---|---|
| 墙式墩 | |
| 反应谱值/ (\text{m}\cdot\text{s}^{-2}) | 1.056 |
| 抗弯能力/ (\text{kN}\cdot\text{m}) | 1.01\times 10^5 |
| 抗弯需求/ (\text{kN}\cdot\text{m}) | 2.08\times 10^4 |
| 能力/需求 | 4.86 |
4.2 E2 地震下墩柱位移验算比较
表 2 列出了在 E2 地震作用下假设两类桥墩均保持在弹性状态计算得到的地震反应。
表 2 E2 地震下墩柱抗弯强度验算
| 计算项目 | 横桥向 |
|---|---|
| 墙式墩 | |
| 反应谱值/ (\text{m}\cdot\text{s}^{-2}) | 3.809 |
| 弯矩需求/ (\text{kN}\cdot\text{m}) | 7.50\times 10^4 |
| 抗弯能力/ (\text{kN}\cdot\text{m}) | 1.01\times 10^5 |
| 能力/需求 | 1.35 |
表 2 显示,在 E2 地震作用下,墙式墩仍不屈服,墩底截面保持弹性,因此不需要进行刚度折减,同时也不需要进行桥墩位移能力验算。而分离式墩中的固定墩柱发生了屈服,在确定位移需求时,需要将桥墩的截面刚度改为等效刚度,采用反应谱法计算弹性位移,然后进行修正(采用修正系数 R_d),得到塑性位移。在确定墩顶容许位移(位移能力)时采用以下计算公式:
式中,H 为桥墩高度;\Phi_y 为墩底截面等效屈服曲率;\theta_u 为塑性铰区最大容许转角;l_p 为等效塑性铰长度。
等效塑性铰长度计算如下:
式中,f_y 为钢筋屈服强度;d_s 为纵向主筋的直径。
塑性铰区最大容许转角计算如下:
式中,\Phi_u 为极限曲率;K 为安全系数,取 K=2.0。
利用 Ucfyber 程序计算得到 \Phi_y 为 0.8198\times 10^{-3} \text{m}^{-1}, \Phi_u 为 49.00\times 10^{-3} \text{m}^{-1}。根据以上公式计算得到分离式墩的位移能力为 53\text{cm}。
表 3 列出了两类桥墩位移能力验算结果。从表中可以看出,分离式桥墩具有较大的位移能力,充分体现了延性设计的特点。
表 3 E2 地震下墩柱位移验算
| 墙式桥墩 | 分离式墩 | |
|---|---|---|
| 反应谱值/ (\text{m}\cdot\text{s}^{-2}) | 2.5 | 1.92 |
| 位移需求/\text{m} | \ast | 0.13 |
| 位移能力/\text{m} | \ast | 0.53 |
注:\ast 表示墩柱处于弹性阶段,位移满足要求。
4.3 墩柱的抗剪强度验算比较
上节内容可知,在 E2 地震作用下,墙式墩仍处于弹性工作状态。根据《城市桥梁抗震设计规范》9,计算出墩柱的抗剪能力,主要包括混凝土和钢筋两部分对墩柱抗剪能力的贡献。对于分离式墩,其在 E2 地震作用下发生屈服,按照能力保护原则计算墩柱的抗剪需求以及进行抗剪强度验算。对于墙式墩,为防止在桥梁遭受更大地震时,墩柱塑性铰区截面发生破坏,同时对墙式墩采用能力设计方法和按照弹性状态两种方式进行验算。
表 4 列出了两类桥墩在 E2 地震下墩柱抗剪需求和抗剪强度的具体数值。表中结果显示,弹性计算时分离式墩的能力需求比与墙式墩相差无几,略高于墙式墩。按照能力保护设计方法计算,墙式墩的能力需求比大幅度降低,仅为 2.72,此时分离式墩的能力需求比为整体式墩的 1.62 倍,提高近 60\%,使桥梁结构更安全更实用。
表 4 墩柱塑性铰区 (外) 截面抗剪强度比较
| 能力/\text{kN} | 需求/\text{kN} | 能力/需求 | |
|---|---|---|---|
| 分离式墩 | 10578 | 2399 | 4.41 |
| 墙式墩 | 21527 | 4984 (7922) | 4.32 (2.72) |
| 比值 | 0.49 | 0.48 (0.30) | 1.02 (1.62) |
注:()内数值为按能力保护方法计算所得数值。
5 桩基础和支座的抗震性能比较
5.1 桩基础的抗震性能比较
表 5 列出了两种桥墩桥梁群桩基础抗震需求,主要包括承台底部组合轴力、剪力和弯矩值,其中轴力包括一跨主梁重力、墩柱重力和承台重力,剪力包括墩柱所受剪力和作用在承台上的横向水平地震力,弯矩包括墩柱底部弯矩和作用在承台上的水平地震力在承台底部产生的弯矩。对于墙式墩,由于在 E2 地震作用下未发生屈服,分别进行弹性计算和按照能力保护原则计算。表中结果显示,弹性计算时,墙式墩桥梁的群桩基础各项受力均大于分离式墩,轴力略高于分离式墩,而墙式墩桥梁群桩基础的剪力需求非常大,为分离式墩的 1.75 倍,弯矩需求是分离式墩的 1.84 倍。按照能力保护原则计算时,墙式墩桥梁群桩基础的抗震需求进一步提高,剪力方面为分离式墩的 2.66 倍,弯矩为后者的 2.92 倍。
表 5 群桩基础抗震需求
| 计算项目 | 轴力/\text{kN} | 剪力/\text{kN} | 弯矩/(\text{N}\cdot\text{m}) |
|---|---|---|---|
| 墙式墩 | 16208 | 5603 (8541) | 89489 (141786) |
| 分离式墩 | 16175 | 3210 | 48532 |
| 比值 | 1.002 | 1.75 (2.66) | 1.84 (2.92) |
5.2 支座的抗震性能比较
由于在 E2 地震作用下,墙式墩未发生屈服,故墙式墩桥梁的固定支座分别按照弹性设计和能力保护构件设计。在 E2 地震下,验算支座的水平抗力,支座的水平力需求与墩柱剪力需求相同。经计算,分离式墩桥梁横向固定支座横向水平力为 2399\text{kN}。弹性设计时,墙式墩支座横向剪力为 4984\text{kN},为分离式墩的 2.08 倍。按照能力保护构件设计时,整体式墩支座横向剪力为 7922\text{kN},对支座的需求为前者的 3.3 倍,需求太大。
6 结论
为改善墙式墩桥梁的横向抗震性能,提出了一种新型的分离式桥墩,并以一座规则连续梁桥为例,对分别采用了两种桥墩的桥梁横向抗震性能进行了细致的比较,得出如下结论:
(1)墙式墩横向强度非常大,在设计地震下不易屈服。
(2)与墙式墩相比,分离式墩能大幅度降低对基础的抗震需求。按照能力设计思想,分离式桥墩对承台的地震剪力和弯矩需求可以降低到墙式墩的 35\% 左右。
(3)采用分离式桥墩不仅能降低基础的抗震需求,也能大幅降低墩顶横向固定支座的地震剪力需求。按照能力设计思想,固定支座的剪力需求可以降低到墙式墩的 30\% 左右。
参考文献
王江胜. 基于地震力作用下的桥墩选型研究 [J]. 北方交通, 2012, (12):84-85. Wang Jiangsheng. Pier type selection research based on effect of earthquake force [J]. Journal of North Communication, 2012, (12): 84-85. (in Chinese)
邱文亮, 姜萌, 张哲. 城市独柱墩桥梁结构体系非线性抗震研究 [J]. 地震工程与工程振动, 2010, (1):161-166. Qiu Wenliang, Jiang Meng, Zhang Zhe. Study on nonlinear seismic behavior of urban bridges with single-column pier[J]. Journal of Earthquake Engineering and Engineering Vibration, 2010, (1): 161-166. (in Chinese) ↩
叶爱君. 桥梁抗震 [M]. 2 版. 北京:人民交通出版社,2011. Ye Aijun. Seismic design of bridge [M]. Second Edition. Beijing: China Communication Press, 2011. (in Chinese) ↩
刘英乔. 试桩对桥梁桩基础设计的重要性 [J]. 黑龙江交通科技, 2008, (1):91-93. Liu Yingqiao. Temporary bridge pile on the basis of the importance of design pile[J]. Journal of Communications Science and Technology Heilongjiang, 2008,(1):91-93.(in Chinese) ↩
范立础. 桥梁延性抗震设计 [M]. 北京:人民交通出版,2001. Fan Lichu. Ductility seismic design of bridges [M]. Beijing: China Communication Press, 2001. (in Chinese) ↩
Priestley M J N, Seible F, Calvi C M. Seismic design and retrofit of bridge [M]. New York: Wiley and Sons, 1996. ↩
刘玉擎. 组合结构桥梁 [M]. 北京:人民交通出版社,2005. Liu Yuqing. Composite structure bridges [M]. Beijing: China Communication Press, 2005. (in Chinese) ↩
中华人民共和国住房和城乡建设部. GB 50017—2003 钢结构设计规范 [S]. 北京:中国计划出版社,2003. Ministry of Housing and Urban-Rural Department of the People's Republic of China. GB 50017-2003 Code for design of steel structures [S]. Beijing: China Planning Press, 2003. (in Chinese) ↩
中华人民共和国住房和城乡建设部. CJJ166—2011 城市桥梁抗震设计规范 [S]. 北京:中国建筑工业出版社,2011. Ministry of Housing and Urban-Rural Department of the People's Republic of China. CJJ 166-2011 Code for seismic design of urban bridge[S]. Beijing: China Building Industry Press, 2011. (in Chinese) ↩ ↩